For a better view on Milestone Properties Cayman, Update Your Browser.
Now Sold

PERFECT DEVELOPMENT LOT WITH PLANNING APPROVED PLANS

(South Sound, Old Prospect Point & Spotts, Cayman Islands)
CI$300,000
  • 114.20 Width
  • 114.20 Depth
  • 0.29 Acres
MLS# 419268

Surrounded by established residential properties, and walking distance to Cayman Islands Brewery, Tim Hortons and McRuss this parcel provides a peaceful setting nearby commercial areas.

Property Description

 This prime land opportunity in the coveted neighborhood of Spotts/Prospect—a nearly 0.3-acre vacant parcel that beckons visionary developers and investors alike. Situated on the tranquil Evco Tour Lane, just six miles east of George Town, this level, cleared lot offers the perfect canvas for your next project.

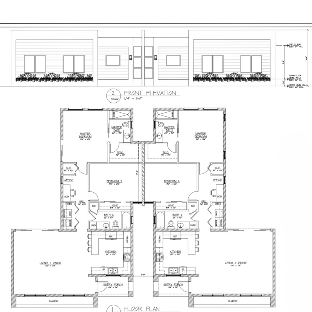
What sets this property apart? It comes with approved plans for a stylish duplex, providing a seamless starting point—saving time and effort. Imagine crafting a private retreat or a lucrative rental property in a community surrounded by established homes, where peace and convenience coexist.

Excitingly, future road access to Evco Tour Lane will be enhanced through a new entry point via the Woodland Glen neighborhood, improving connectivity and accessibility to the site. This development promises increased ease of access and increased value potential.

With CUC pole installed and readily accessible—electricity, water, and telecommunications—this site is primed for development, with the only requirement being a septic tank due to the absence of mains drainage. Zoned for low-density residential use, it offers the flexibility to build a cozy residence or a small residential enclave.

Held freehold with a clear title, free from restrictions or current leases, this parcel presents a compelling opportunity for forward-thinking investors and developers seeking a well-positioned, ready-to-build lot in a serene yet connected locale. Unlock the potential of this exceptional property and turn your vision into reality.

Key Features

Property Type:Land
Listing Type:Low Density Residential
Property Status:Sold
Address:Evco Tours Ln, Patricks Island, Cayman Islands, South Sound, Old Prospect Point & Spotts
Views:Garden View
Block:25B
Parcel:668
Direction:From the Tim Hortons Exit Turn left unto Mangrove Ave and then right on EVCO Tour Lane
Zoning:Low Density Residential
Possession:At closing
Frontage Road:Private
Trees:None
How Shown:Drive by
Soil:Rock

Mortgage Calculator

Mortgage Calculator lets you estimate your monthly mortgage payment input different prices, terms, interest rates, and down payments and see varying monthly loan amounts.

30
5
300000.00
20
Your Estimated Payment
Down Payment Required $60,000.00
Mortgage Principal $240,000.00
Monthly Payment $1,288.00
Still Owing at End of Term $0.00

Nearby Locality

Surrounded by established residential properties, and walking distance to Cayman Islands Brewery, Tim Hortons and McRuss this parcel provides a peaceful setting nearby commercial areas.

Learn more about South Sound, Old Prospect Point & Spotts

Request more Information

Contact us today for more information on this property or to schedule a viewing.

* Denotes Required Inputs