For a better view on Milestone Properties Cayman, Update Your Browser.
CIREBA MLS LDX feed courtesy of ENGEL & VOLKERS

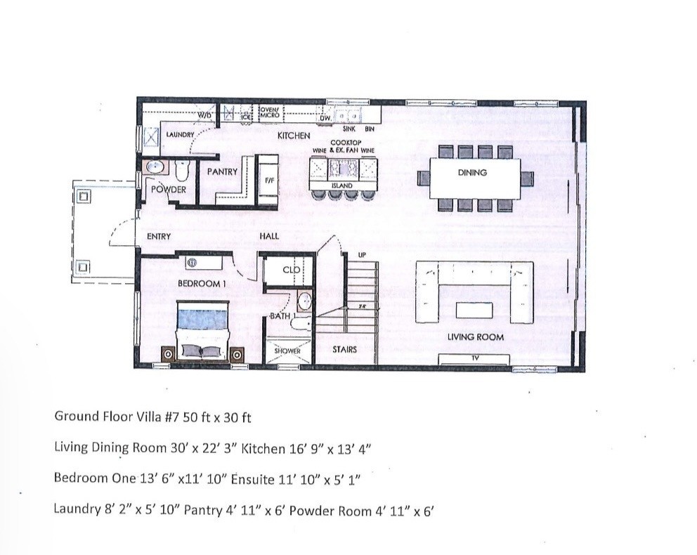
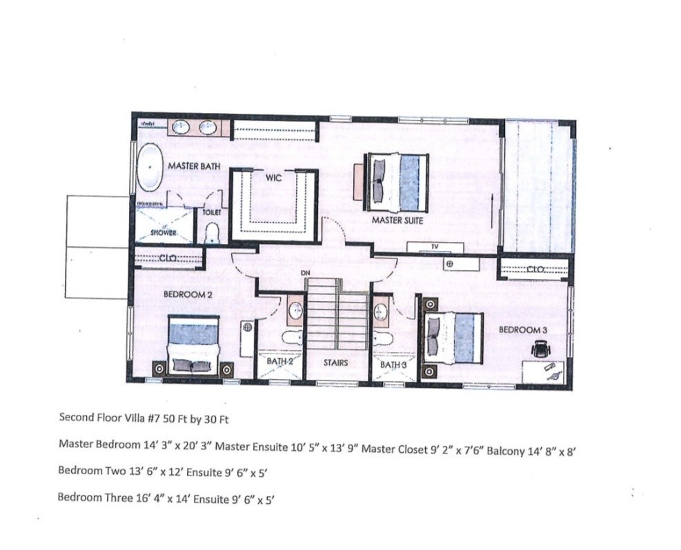
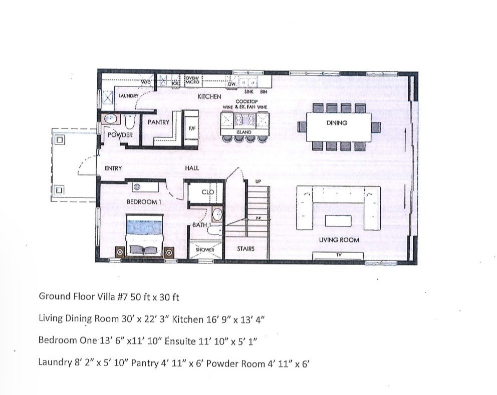
OCEANS 9 VILLA 7 WEST BAY LUXURY BEACHVIEW DETACHED HOME

(West Bay / North West Point, Cayman Islands)
US$2,800,000
  • 4 Bedrooms
  • 4.5 Bathrooms
  • 3,401 Sq. Ft.
  • 0.26 Acreage
MLS# 419859

Experience the ultimate in resort-style living with this rare beach view detached villa in the exclusive, gated Oceans 9 community—offering privacy, luxury, and ef...

Property Description

Experience the ultimate in resort-style living with this rare beach view detached villa in the exclusive, gated Oceans 9 community—offering privacy, luxury, and effortless island living without the high resort fees. The open-concept ground floor features a bright, spacious living area flowing seamlessly into a chef’s kitchen with custom cabinetry and premium Kitchen Aid appliances, including dual wine coolers, ice maker, dishwasher,  5 burner propane cooktop and double wall ovens with warming drawer. There is a walk-in pantry with custom shelving and a dedicated laundry room with LG washer/dryer, sink, folding area and custom cabinets adding both functionality and convenience. On the second floor the primary suite offers a spa-inspired bathroom with freestanding soaking tub and a glass enclosed shower with 3 shower heads.  The expansive walk-in closet includes a wall of display shelving.  The primary suite opens to a private balcony overlooking the pool with ocean views. Two additional king sized bedrooms each feature private en-suites and custom cabinetry.  The generous main floor fourth bedroom features an ensuite and built-in closets  providing flexibility—ideal for guests, grandparents, or as a media room.  Enjoy all the independence of a standalone home with the ease and security of a professionally managed, gated community featuring two resort-style swimming pools, a meandering lazy river and direct access to a long, pristine beach. The 2.3 acres of lush landscaping is home to only nine villas.  This newly constructed 3,401 sq. ft. residence sits within a boutique development, thoughtfully designed to capture natural light while the front terrace remains shaded from the afternoon sun. Elevated 13 feet above sea level, it combines safety, serenity, and enduring quality, with solid poured concrete construction, hurricane-rated windows and doors and custom blinds (blackout in all bedrooms). The property also includes a private garage and two additional parking spaces for convenience. Perfectly positioned just five minutes from the Kimpton Seafire Resort + Spa, Hotel Indigo, and the silver sands of Seven Mile Beach, this home places you near Grand Cayman’s five-star resorts, world-class spas, fine dining, and vibrant entertainment. Offered unfurnished, with all high-end kitchen and laundry appliances included. This is a rare opportunity to own a private beach view villa in one of Grand Cayman’s most desirable locations—where every day feels like a luxury vacation. Excellent rental income, US$15k per month Tour link: https://my.matterport.com/show/?m=NAfhtktpj2f

Key Features

Property Type:Residential
Listing Type:Single Family Home
Property Status:Current
Year Built:2025
Address:Sonny Powerys Drive, West Bay / North West Point
Views:Ocean View
Block:1C
Parcel:271H7/H13
Foundation:Slab
Zoning:Low Density residential
Garage:1
Sea Frontage:200
Pool:Yes

Mortgage Calculator

Mortgage Calculator lets you estimate your monthly mortgage payment input different prices, terms, interest rates, and down payments and see varying monthly loan amounts.

30
5
2800000.00
20
Your Estimated Payment
Down Payment Required $560,000.00
Mortgage Principal $2,240,000.00
Monthly Payment $12,025.00
Still Owing at End of Term $0.00

*Disclaimer: The information contained herein has been furnished by the owner(s) and or their nominee and represented by them to be accurate. The listing company, agent and CIREBA MLS disclaims any liability or responsibility for any inaccuracies, errors or omissions in the represented information. The listing details herein are also courtesy of CIREBA (Cayman Islands Real Estate Brokers Association) MLS and/or via LDX (Listing Data Exchange) feed. All the information contained herein is subject to errors, omissions, price changes, prior sale or withdrawal, without notice and is at all times subject to verification by the purchaser(s).

Request more Information

Contact us today for more information on this property or to schedule a viewing.